愛樂廣場,田安大橋南首個都市綜合體,泉州中心區、晉江市區、江南新區,三城交匯,多個商業體聚集地。愛樂廣場的營銷中心目前外立面已裝修完畢,呈現出了后現代主義的風格,簡單而清新脫俗,非線性而錯落有致。項目沙盤、戶型和工作人員也入駐,或將于11月上旬正式對外開放,11月底或將迎來首次開盤。
愛樂廣場一期首發57間28-150平黃金店鋪和360套78-95平的住宅。一期首發的黃金店鋪,沿街、臨湖、靠商場,單層面積40-60平合理布局(4-6米面寬,10米的進深),一層4.5米,二層3.6米,讓展示、居住、辦公自由布置,靈活的空間,超高得房率。
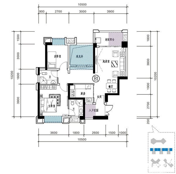
愛樂廣場住宅戶型方正,空間充裕,隨意寫意溫馨空間。小戶型,低總價,宜商宜住宜投資,無限延伸財富與生活空間。
建筑面積約78.61,兩房兩廳一衛

舒適二居,明廚明衛,陽光曬滿每個角落;戶型方正,空間利用充分無死角;客廳與主臥闊綽面寬,市場少見;客廳與主臥全朝南,更享中庭美景;玄關設計,增強私密更添無限想象空間。
建筑面積約95平,兩房兩廳兩衛

入戶花園設計,彰顯品質生活;主臥帶專屬衛生間,私密性強;方正戶型,空間利用無死角;動靜分離,干濕分區,生活井然有序;全明設計,讓生活處處充滿陽光的問題;贈送多變空間,讓生活充滿想象。
【項目鏈接】

愛樂廣場是愛樂集團2014年的又一新作,作為愛樂集團旗下的精品房地產項目,繼承愛樂集團的一貫的品質與貼心的服務,緊隨時尚潮流,旨在打造城北時尚新城。該項目占地104畝,總建筑面積達40萬平方米,是區域內唯一一處集住宅、寫字樓、購物、娛樂為一體的國際都市綜合體。
愛樂廣場涵蓋多種業態,70-100平米方正小戶型高層住宅,輕松打造兩房三房生活;5A超甲級寫字樓,單層或雙層商鋪,提前預約財富時代;白金五星級酒店,打造首席名流生活圈;國際性一站式購物,讓你身處購物天堂。
地址:泉州市泉安北路東側(安踏集團對面)
電話:0595-85666999
(海西地產網 吳淑惠輯)
















